About the D Avenue Early Learning Center
The Samish Indian Nation is developing a new early learning center at the site of the former D Avenue Nursery in Anacortes that closed in 2020. Samish, which operates the successful Samish Longhouse preschool, purchased the site with the help of a State capital budget appropriation sponsored by Representatives Ramel and Lekanoff and Senator Lovelett.
The Need
Anacortes has a critical need for new childcare facilities. Prior to the COVID-19 pandemic, there were approximately 1,000 children in Anacortes under school age and only 12% of those had access to full-time, licensed childcare. That's less than half the Washington State average of 27%, which is itself is considered to be a crisis of inadequate capacity. Quality childcare is critical for the academic and socioemotional foundations of children and for families to be able to return to work as we emerge from the pandemic.
Project Design

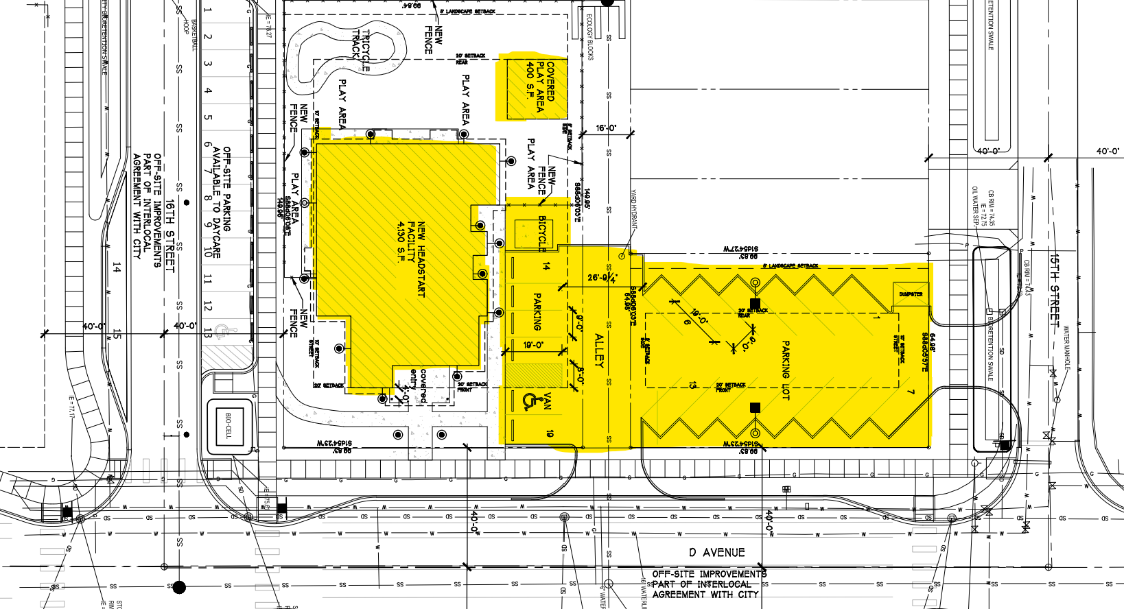
The new early learning center will feature:
- 5 classrooms ranging from infants to toddlers
- Approximately 40 total students and 17 staff
- Approximately 4100 square feet
Street Improvements
Separately from the conditional use permit process, Samish is collaborating with the City of Anacortes to fund improvements to D Ave, 15th Street, and 16th Street per the City's design, which will include 13 on-street perpendicular parking spaces and benefit both the new early learning center and the neighborhood. The street design overlaid with the new ELC site plan is shown below.